Chung cư CT4 Yên Nghĩa
Email : Hoanghailand.info@gmail.com
Hotline : 0979.051.746
Chi tiết dự án
Nhận ký gửi Bán & cho thuê Chung cư CT4 Yên Nghĩa
Hotline: 0964.63.36.26
************


Trong khi khu vực trung tâm Hà Nội đang dần trở nên chật chội, quỹ đất đã được khai thác hết, Khu nhà ở Bộ tư lệnh Thủ Đô nằm trong chuỗi đô thị phía Tây thủ đô đang tạo nên làn sóng bất động sản mới tại Hà Nội. Nơi đây cũng được lựa chọn phát triển giáo dục đại học, cao đẳng tập trung với cụm đại học quy mô 30.000 sinh viên bao gồm: Đại học kiểm sát, Đại học Nội vụ, Cao đẳng y tế Hà Nội… Một nhánh đô thị Hà Nội mới năng động, nhộn nhịp đang hình thành.

Dự án Chung cư CT4 Yên Nghĩa - Khu nhà ở Bộ tư lệnh Thủ Đô tọa lạc tại tiền mặt đường Quang Trung - Hà Đông, nơi giao cắt với đường Lê Trọng Tấn. Cách trung tâm quận Hà Đông 1.5km, cách KĐT Văn Khê 1km, cách trường ĐH Thành Tây 300m, cách khu vui chơi Thiên Đường Bảo Sơn chỉ 3km. Vị trí đắc địa của CT4 Yên Nghĩa Residence còn được nâng tầm khi nằm xen kẽ trong khu công viên xanh The Spark – tạo thành nơi nghỉ ngơi lý tưởng cho gia đình trẻ sau một ngày bận rộn.

Dự án CT4 Yên Nghĩa tọa lạc tại vị trí lý tưởng: nằm trên mặt đường Quốc Lộ 6 đang được mở rộng với 6 làn xe, cách UBND phường Yên Nghĩa, Quận Hà Đông khoảng 100m, chỉ mất 15 phút để di chuyển từ dự án vào trung tâm thành phố. Dự án được thừa hưởng tất cả các hạ tầng xã hội đã hình thành sẵn trên địa bàn như: Hệ thống trường học từ mầm non đến THPT, chợ, bệnh viện, siêu thị… Đặc biệt, ngay cạnh dự án là bến xe Yên Nghĩa cư dân CT4 Yên Nghĩa để đón các tuyến bus để duy chuyển vào nội đô bus nhanh BRT Yên Nghĩa Kim Mã. Cùng với đó, tuyến tàu điện trên cao Cát Linh - Hà Đông giúp cư dân rút ngắn khoảng cách đi lại và giảm thiểu áp lực cho cư dân đang làm việc tại trung tâm thành phố.

Vị trí đắc địa của CT4 Yên Nghĩa còn được nâng tầm khi nằm xen kẽ trong khu công viên xanh The Spark – Park City Hà Nội tạo thành nơi nghỉ ngơi lý tưởng cho gia đình trẻ sau một ngày bận rộn. Tiện ích sinh thái cho cư dân cũng được chủ đầu tư quan tâm với thiết kế các khu luyện tập thể thao, chăm sóc sức khỏe, spa, sân cầu lông, vườn hoa, lối đi dạo, khu vui chơi trẻ em trong nhà và ngoài trời, phòng sinh hoạt cộng đồng. Thừa hưởng các công trình tiện ích trong KĐT Nam Cường như hệ thống trường học liên cấp, BV Quốc tế Nam Cường, BV Nhi TW (cơ sở II) ..

Không chỉ sở hữu vị trí thuận lợi trong khu vực đô thị năng động hiện đại, những chủ nhân tương lai tại Chung cư CT4 Yên Nghĩa - Khu nhà ở Bộ tư lệnh Thủ Đô còn được tận hưởng những tiện ích nội khu phong phú và hoàn hảo như: rạp chiếu phim, trung tâm thương mại, café, nhà hàng, phòng tập gym, khu spa,… Dự án không chỉ thể hiện uy tín, chất lượng hàng đầu của chủ đầu tư mà còn mang tâm huyết tạo dựng ngôi nhà mơ ước cho cư dân. Tại đó, họ hoàn toàn được hưởng thụ một cuộc sống trong lành, đầy đủ, tiện nghi hiện đại.

Không chỉ là một nơi để ở, Chung cư CT4 Yên Nghĩa - Hà Đông sẽ là nơi hưởng thụ tuyệt vời. Không gian chuẩn mực và tiện nghi tại đây sẽ là chuẩn mực cuộc sống hiện đại trong tương lai mà bất cứ cư dân nào cũng đều mong muốn.

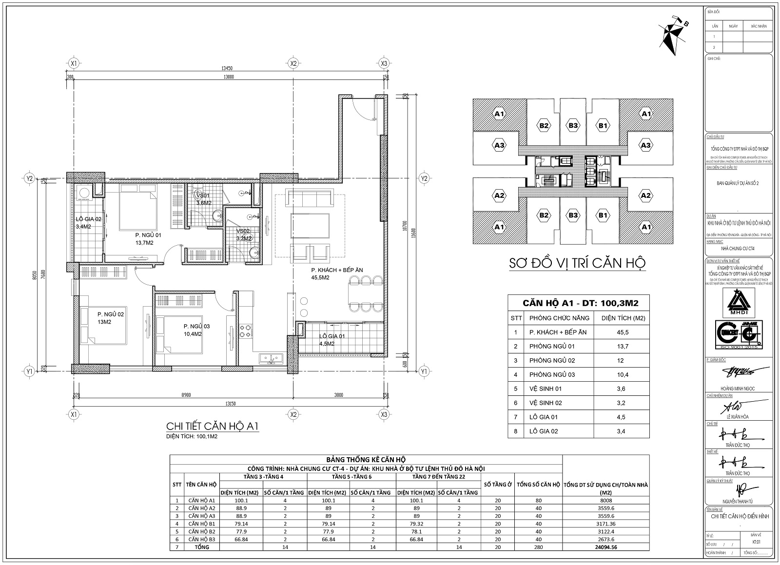
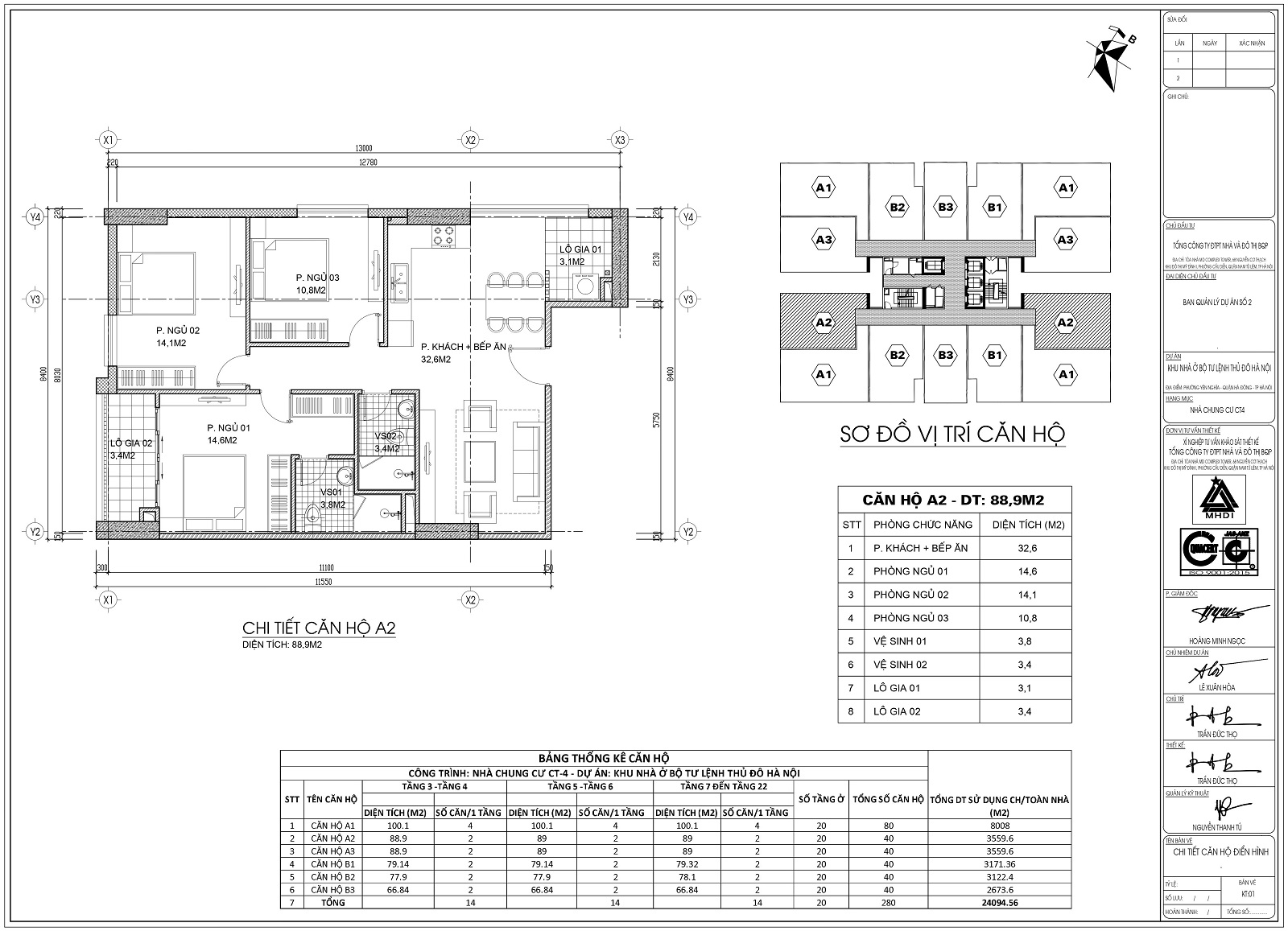
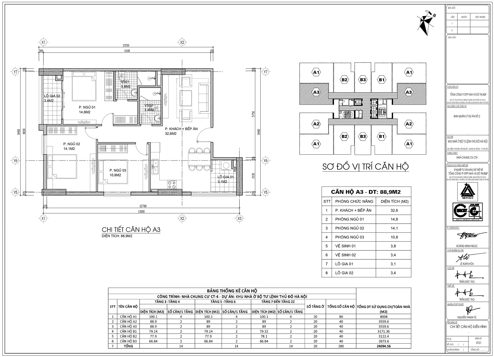
Không gian căn hộ của Chung cư CT4 Yên Nghĩa Residence được thiết kế thông minh, mang tính hữu dụng cao với các loại căn hộ được thiết kế từ 2-3PN, được thiết kế tối ưu công năng sử dụng trong bố trí nội thất và hình thức kiến trúc. Không chỉ vậy, Chung cư CT4 Yên Nghĩa còn được đầu tư, thiết kế các phòng và phân khu chức năng được tiếp xúc trực tiếp với gió trời và ánh sáng tự nhiên. Nhờ hệ thống cửa sổ thông minh và mở lô gia lấy sáng, sự lưu thông không khí…

Một điều không thể bỏ qua đối với dự án này là câu chuyện của chủ đầu tư. Câu chuyện chữ Tâm với nghề, tâm huyết xây lên những căn hộ dành cho khách hàng như dành cho người thân của mình ở đó. Vì thế cho nên chủ đầu tư quan tâm đến mọi chi tiết, từ việc lựa chọn đối tác đến những vấn đề vi mô khác trong công tác xây dựng nhằm tung ra thị trường dòng sản phẩm giá rẻ chất lượng cao
Với thiết kế từ 2-3 phòng ngủ, cộng với không gian trong ngôi nhà được xây dựng cẩn trọng, công phu, tỉ mỉ và khéo léo theo tiêu chuẩn quốc tế. Từ phòng khách đến phòng ngủ hay phòng bếp đều đón ánh sáng và không khí trong lành từ thiên nhiên.

Sự kết hợp hài hòa giữa ánh sáng từ các khung cửa sổ rộng lớn và ánh sáng bên trong góp phần nâng cao được chất lượng cuộc sống cho các gia chủ. Việc tận dụng tối đa ánh sáng và gió tự nhiên tại Chung cư CT4 Yên Nghĩa còn giúp cư dân tiết kiệm chi phí điện năng.






Theo nhiều chuyên gia, vấn đề ô nhiễm môi trường hiện tại đang trở thành vấn nạn và việc khắc phục sẽ cần nhiều thời gian. Do đó, để đảm bảo sức khỏe với môi trường sống trong lành thì người dân nên chọn dự án được đầu tư bài bản với hệ thống cây xanh để thanh lọc bầu không khí. Như vậy, chọn cuộc sống xanh tại Dự án CT4 Yên Nghĩa là chọn cách bảo vệ sức khỏe hoàn hảo nhất.
LIÊN HỆ TƯ VẤN VÀ ĐẶT LỊCH XEM DỰ ÁN
HOTLINE: 0964.63.36.26
************
TIN TỨC MỚI CẬP NHẬT
DỰ ÁN NỔI BẬT
Dự án cùng khu vực
Chat Zalo